Intake
01
We beginnen altijd met een persoonlijk gesprek. Samen ontdekken we jullie wensen, eisen en manier van leven, dit vormt de basis voor het programma van eisen. We luisteren, stellen de juiste vragen en delen ideeën en mogelijkheden die inspireren. Zo bepalen we samen de koers voor het ontwerptraject.
Visual Design
02
Op basis van dit programma vertalen we de ideeën naar drie schetsontwerpen, ondersteund met sfeerimpressies en 3D handschetsen. We presenteren een opbouw in mogelijkheden: van een praktisch basisplan tot een exclusieve opzet binnen de gestelde randvoorwaarden. Zo voelen jullie stap voor stap welke richting het beste past en maken we samen de keuzes voor de verdere uitwerking. Daarna werken we het ontwerp in verschillende stappen verder uit. de onderdelen worden begroot en in 3D gevisualiseerd, zodat er weloverwogen beslissingen kunnen worden genomen en een duidelijk beeld ontstaat van zowel het project als het budget.
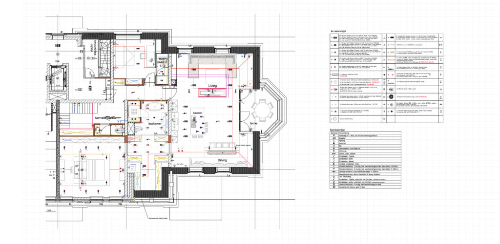
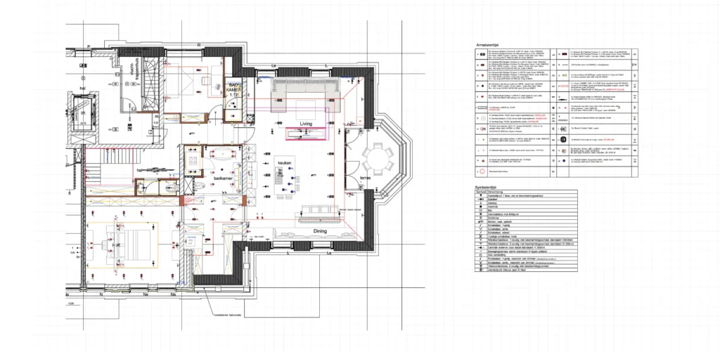
Technical Design
03
Wanneer de koers vaststaat, vertalen we het ontwerp naar technische tekeningen en omschrijvingen. Hierin leggen we precies vast hoe onderdelen worden uitgevoerd, uit welke materialen ze bestaan en welke detaillering gewenst is. Alles wordt gebundeld in een overzichtelijk pakket voor prijsaanvragen en de uiteindelijke projectbegroting.
Project Management
04
In de realisatiefase stellen we een zorgvuldig geselecteerd projectteam samen uit de beste uitvoerende partijen. Wij nemen de begeleiding volledig op ons: van de eerste bouwvergadering tot de laatste afwerking.
Realiseren & Ontzorgen
05
We coördineren, bewaken de kwaliteit en zorgen dat elk detail volgens plan wordt uitgevoerd. Zo kunnen jullie met een gerust hart toekijken hoe het ontwerp tot leven komt, precies zoals bedoeld.
uw wensen

Ontdekken van uw ideale levensstijl

Wij geloven dat een goed ontwerp begint met aandachtig luisteren. In een persoonlijk gesprek brengen we uw wensen, voorkeuren en manier van leven in kaart. Dit vormt de basis voor een doordacht ontwerp waarin architectuur en interieur naadloos op elkaar zijn afgestemd, zowel op technisch als esthetisch vlak. Gedurende het hele proces houden we u nauw betrokken en adviseren we in hoogwaardige materiaalkeuzes, technische mogelijkheden en budgettering. Zo creëren we samen een leefomgeving die niet alleen mooi oogt, maar ook perfect aanvoelt.

Visueel ontwerp

Het gevoel van
leven vastleggen

Elk ontwerp ademt karakter en draagt onze kenmerkende signatuur: een uitgebalanceerde mix van verfijning, comfort en originaliteit. Internationale inspiratie, opgedaan tijdens designbeurzen en reizen, gecombineerd met de kennis en materialen van onze exclusieve leveranciers, geven elk concept een gelaagdheid die verder reikt dan het alledaagse.

Neem contact met ons op voor een vrijblijvende kennismaking

Deze site is geregistreerd op wpml.org als een ontwikkelsite. Schakel over naar een productiesite met de sleutel op remove this banner.